
TQA1901
BB42 APARTMENT
Budapest
2019
interior design - built
collaborator - Agnes Bubla
photos by - Balazs Danyi
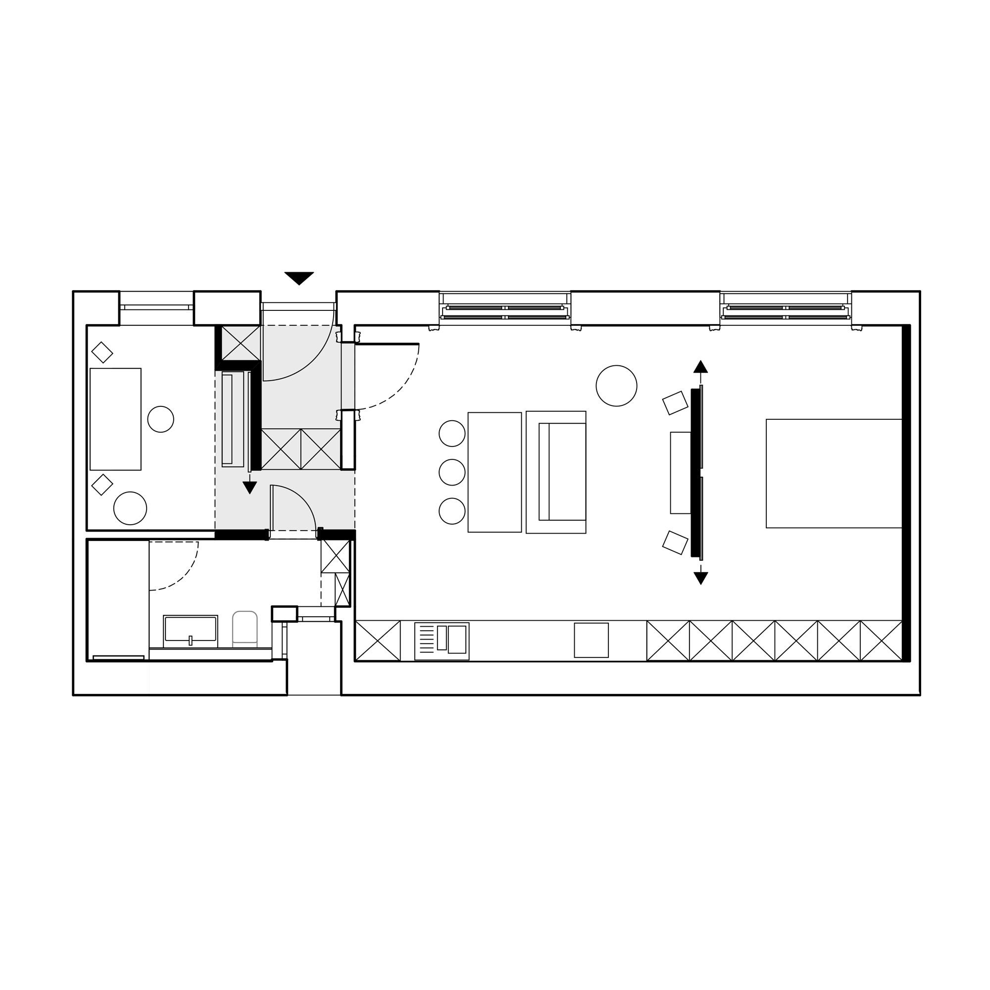
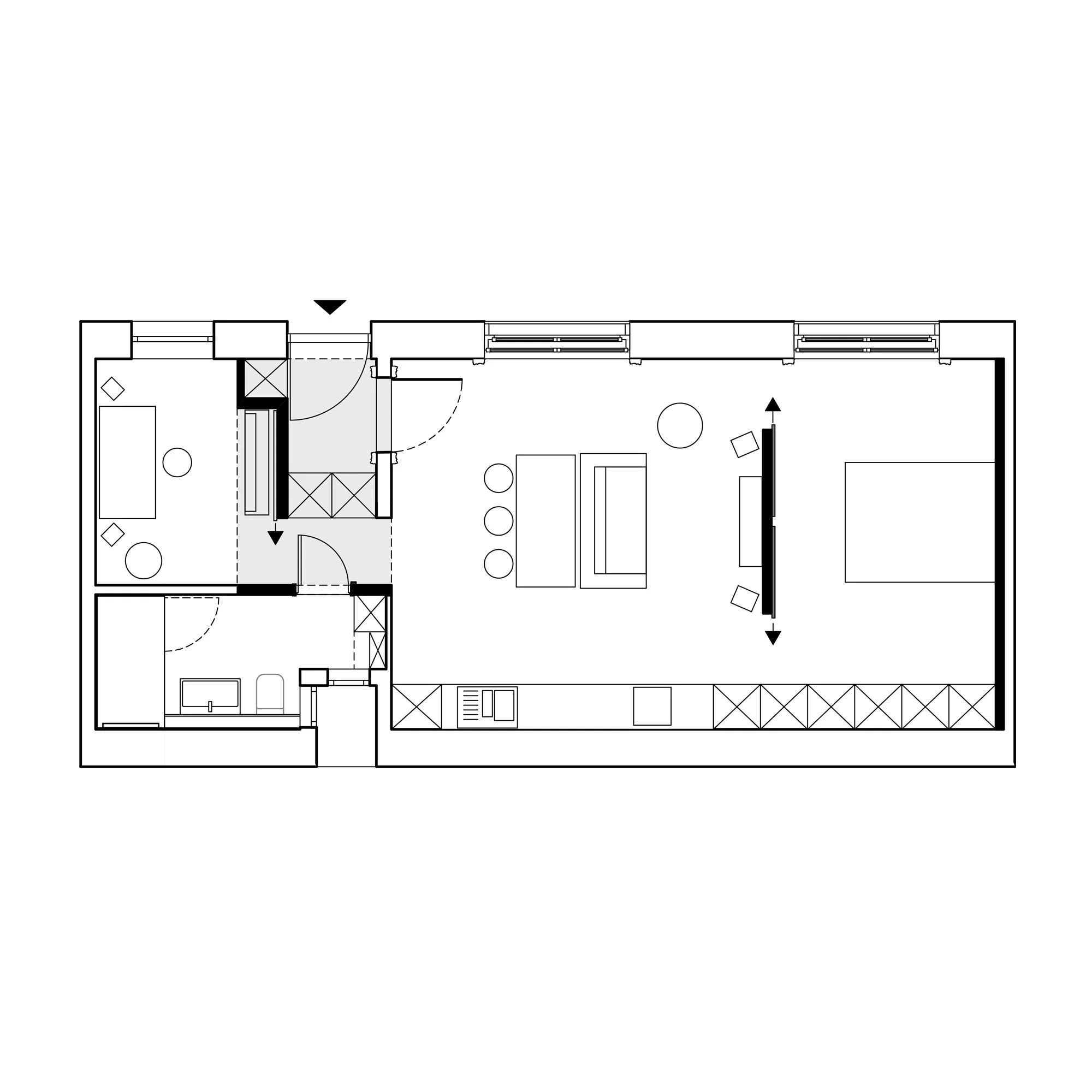
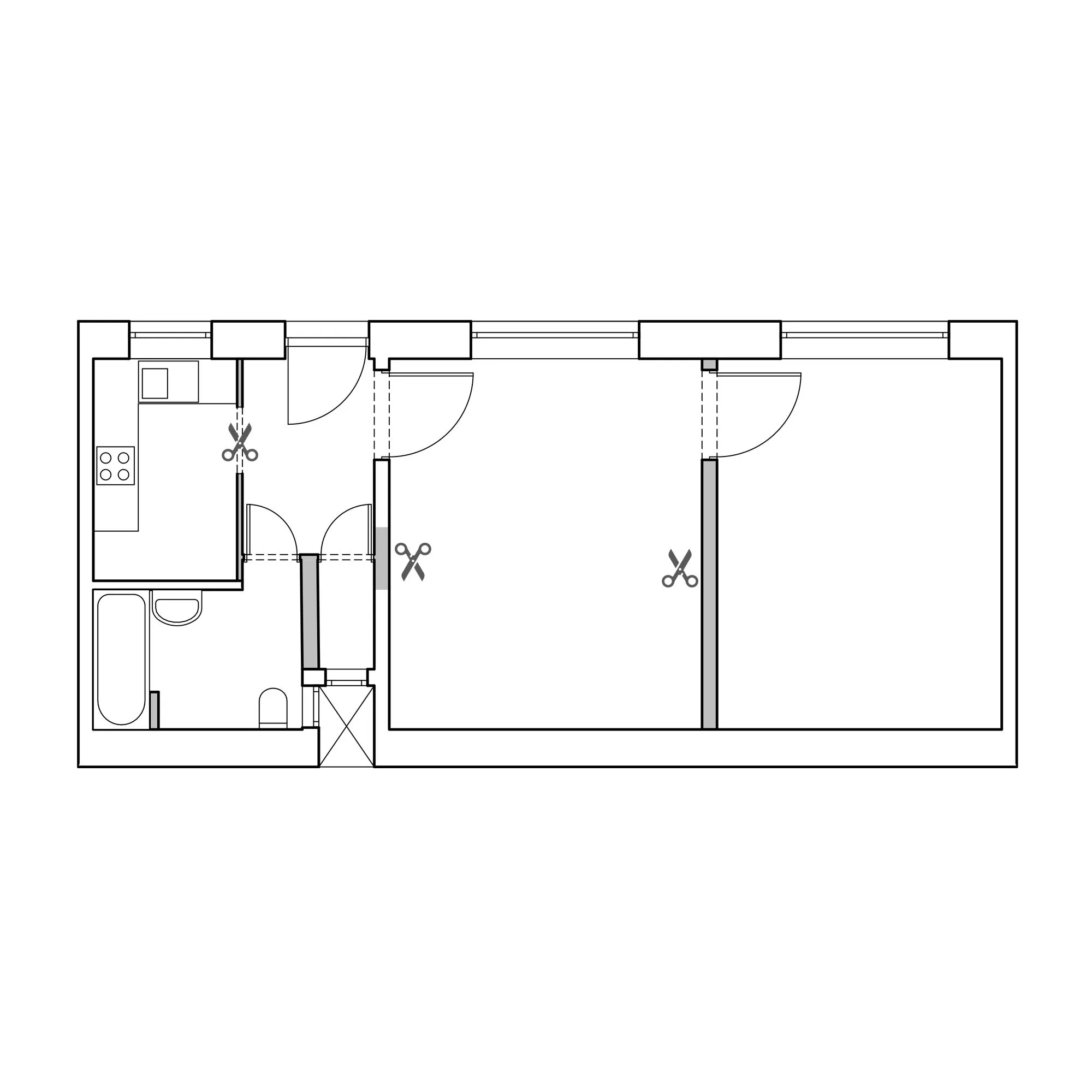
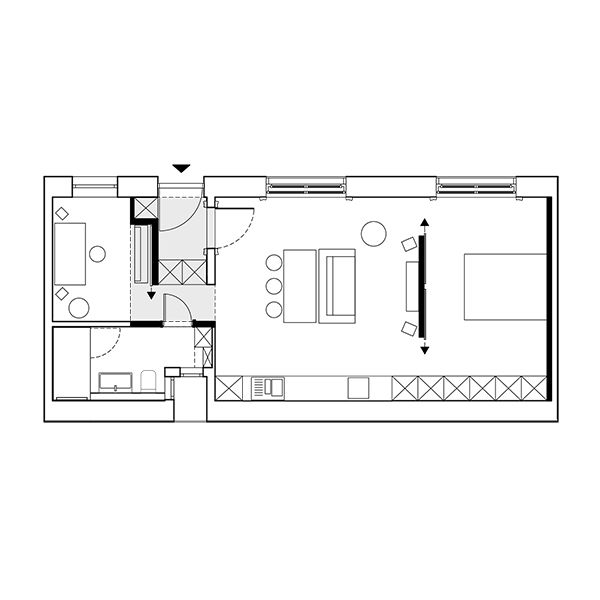
The apartment takes place in a 125 year old historic building in the old town of south Buda. Through the century this is the third layer of renovation on this home. The concept is adding a new layer using the current renovation instead of erasing the story of the house. In this new layer we added a Cube and a Quader to divide the apartment to two bedrooms instead of one, in order to reach a more mobile space in the middle. The interior is dominated by the harmony of white, black and plywood.















