
TQA2002
AK HOUSE
Szeged
2020
house - in progress
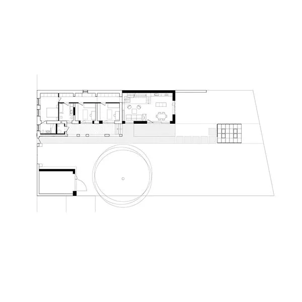
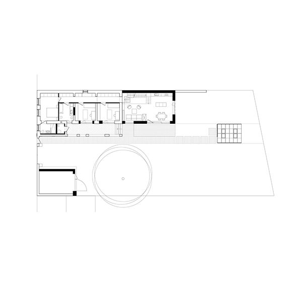
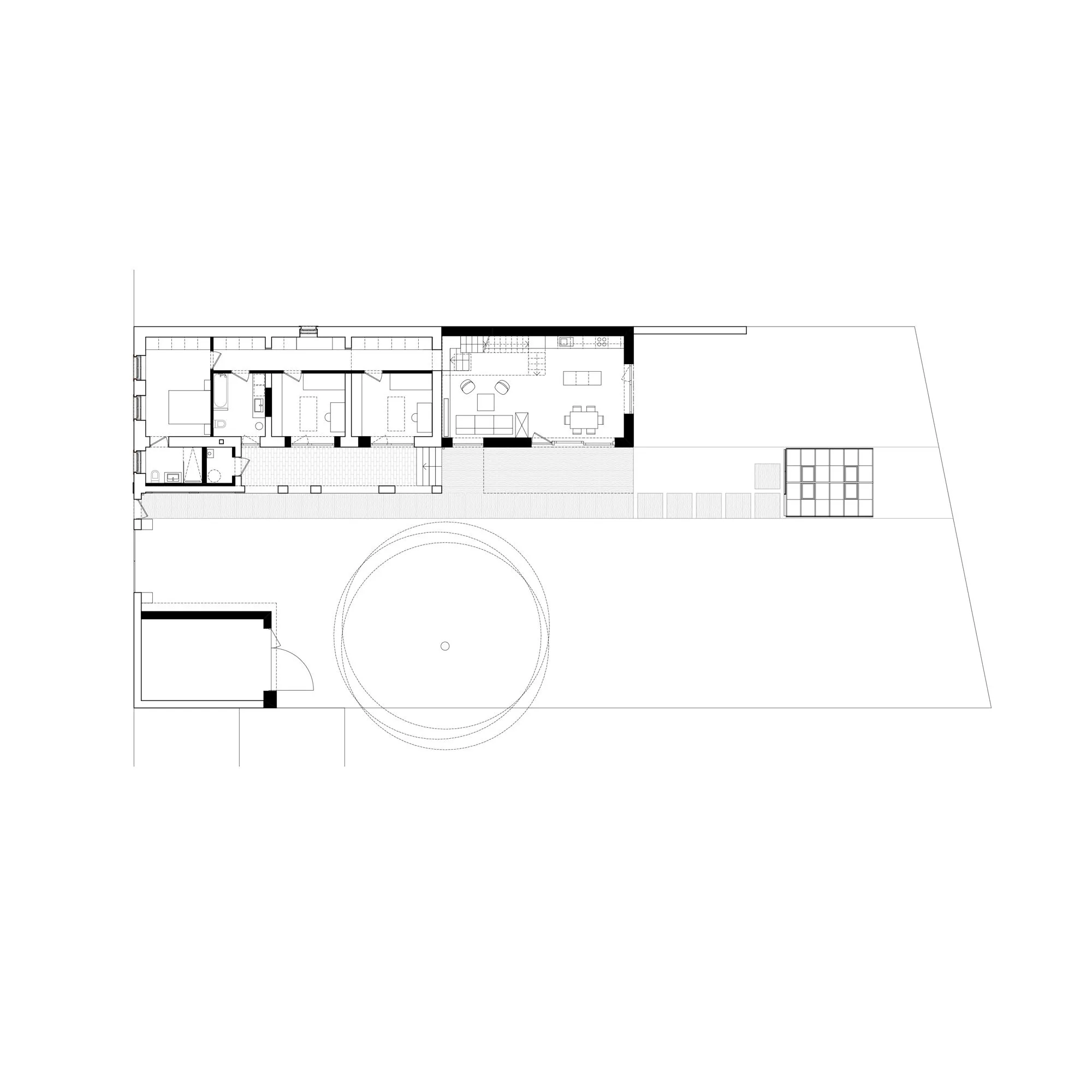
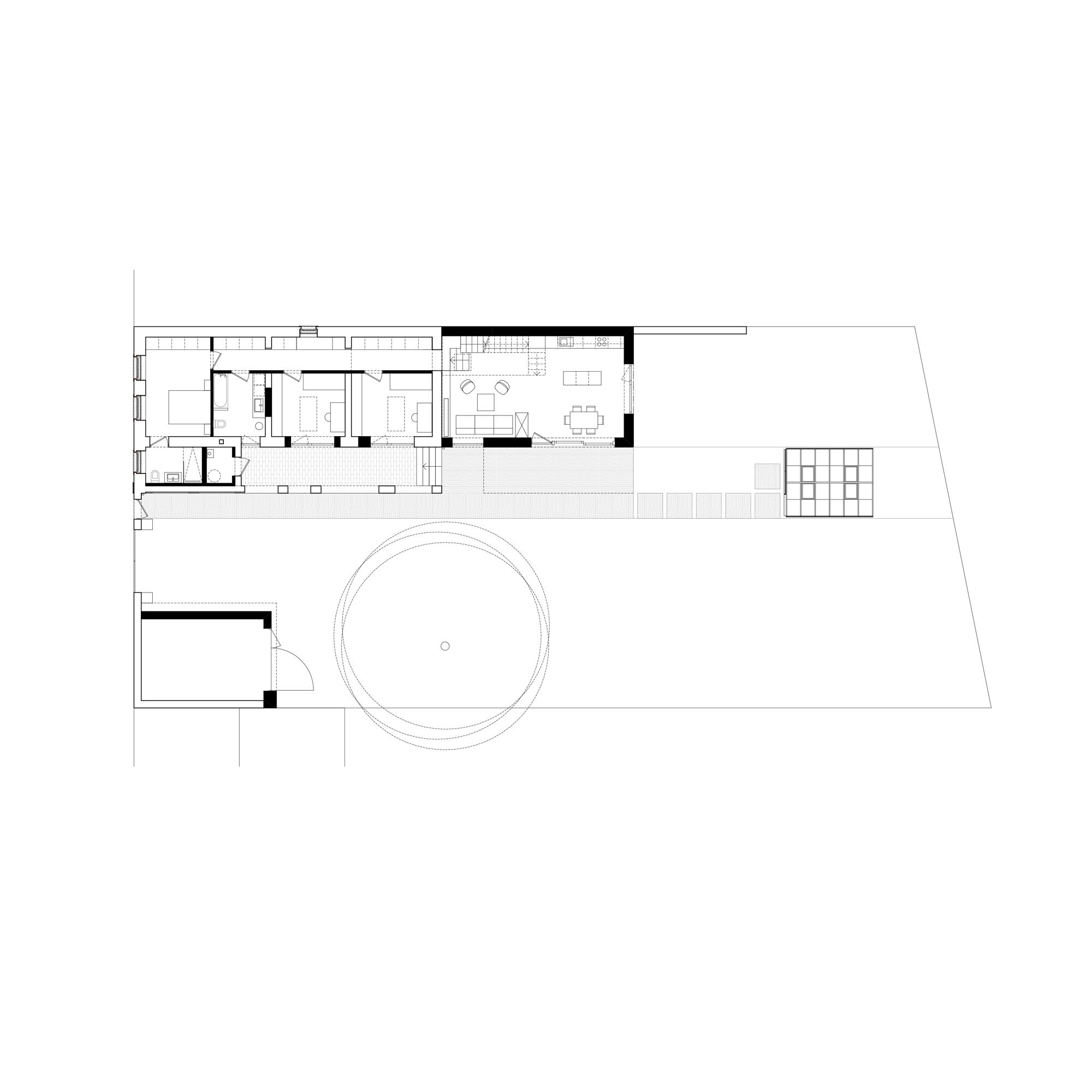
The renovation and extension project takes place in Alsovaros, the old district of Szeged. After the big flood in 1879 this part of the city was redesigned and rebuilt with the housing types called "sunshine houses". The typical front-gabled houses with centrally boarded fronts imitating sun-ray. The result was a rhythmic building line of the streets with their siting perpendicular to the roads.
This "sunshine house" was renovated first in 1940s. The front got a brick facade representing the wealth of the former inhabitants. Also the characteristic porch was built in to earn more inner space.
Today's renovation wants to be a new exciting layer on the house, representing its inhabitants thoughts of the world. It keeps the brick front as a history of the house, but restores the open space porch, which was the most important character of sunshine houses. Because of bad condition, the end of the building is rebuilt with a new character, that doesn't want to imitate old ages mindset. The extension follows the existing context, the idea of erasing the border of in and out by continuing the porch in a contemporary way. The new roof keeps distance from the old in order to let more sunshine in.























