
TQA2003
FRAME HOUSE
Szeged, Szoreg
2020
house - built
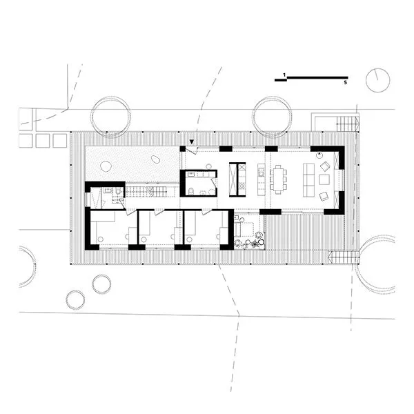
A new house appeared with its black framing porch and facade in Szőreg, the oldest district of Szeged. The house breaks with the bad traditions in the neighborhood that created dark closed interiors close to the woods. The main goal with this new project was letting nature as close as possible to the house, regarding the plot takes place on a loess hill next to nature conservation woods, next to the context of front-gabled houses.
The nature-loving residents wanted a living space that was as close as possible to nature, and they wanted to use the large but narrow plot for gardening and planting as well. The main concept was a cantilevered framed porch floating above the sloping terrain to allow vegetation to creep under the house. The frame surrounds and organizes the two main blocks with gable walls typical of the urban character, one of which contains the intimate room part and the other the common living spaces. The frame also marks two atriums, the arrival area and the sunny terrace, which strengthen the connection with nature and provide special transparent views between the different spaces. The porch was designed in a modular system, which also shaped the rest of the house and its mass, thus giving the building a well-proportioned rhythm.



























