
TQA2101
S42 SHOP & APARTMENT
Debrecen
2021
commercial - in progress
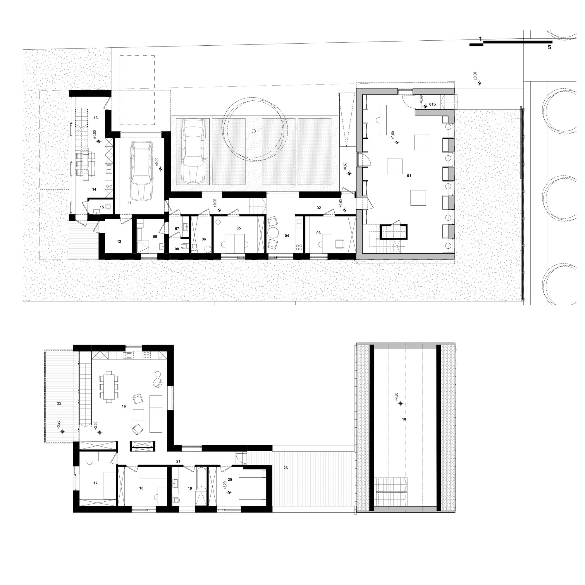
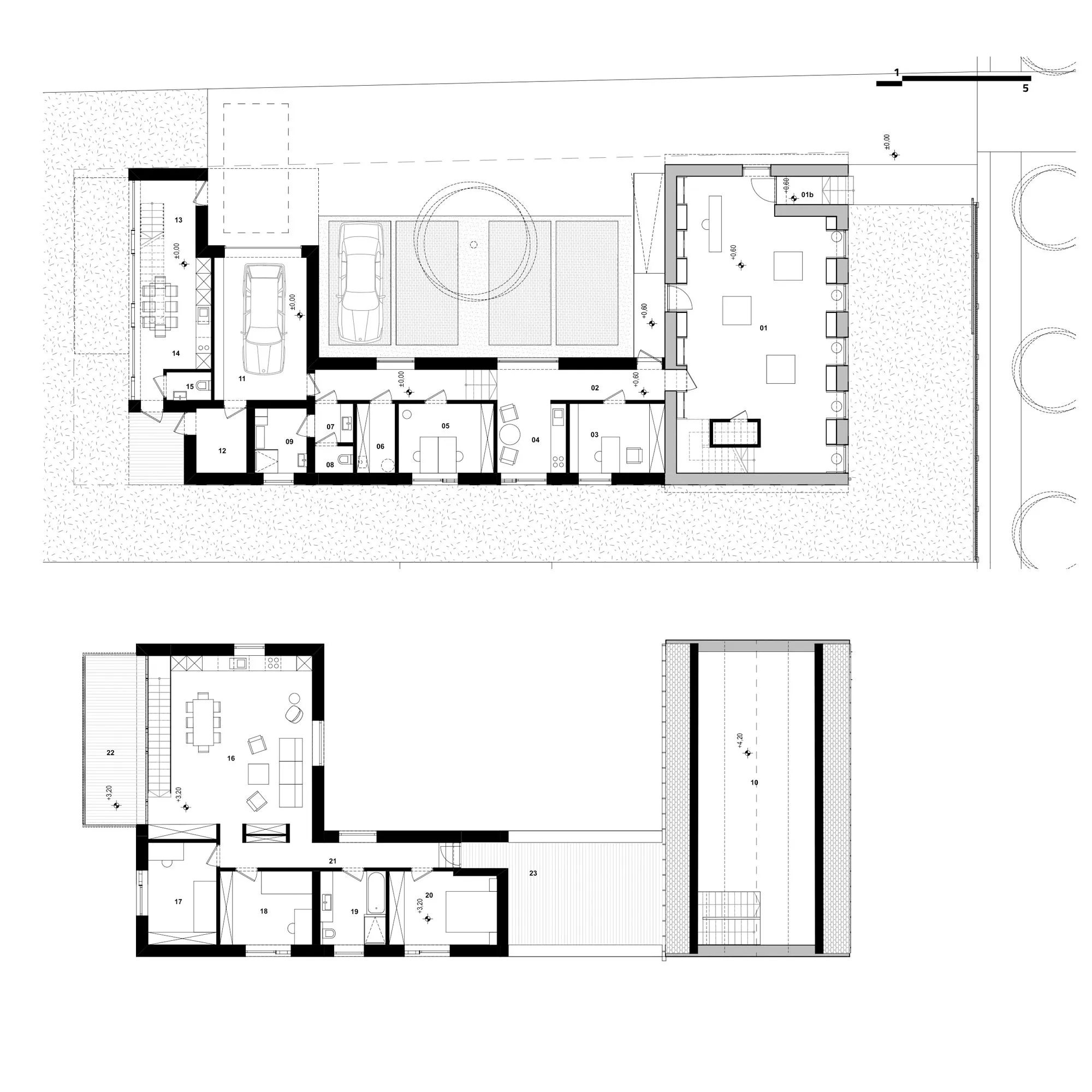
The 120 year old house stands in the outskirts of Debrecen, one of the last memorial of the old urban structure. The concept of the extension keeps the old building visually separated from the new one, and draws up the position of the addition under one big dynamic roof with the old house.
The renovation of the existing building saves the rhythm of the original windows for increased shop-windows. The interior has been fully erased in order to place the shop in a new larger space. The back-office of the shop and the apartment moves into the new extension-wing clearly separated from each other. The surrounding area of the building is divided into three different areas: 1. entrance area, 2. parking courtyard, 3. intimate garden of the apartment.






















