
TQA2103
TATA CITY CENTRE
Tata
2021
competition
collaborator: Zsófia Hompók
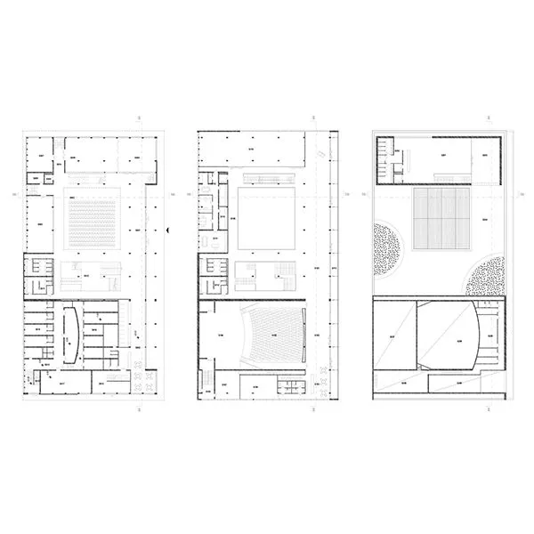
Tata with its castle is one of the oldest settlements in Hungary with a thousand year old history. Settled next to the Old Lake with many layers of historical memories. Tata is also called "the city of water". In 1938, the village of Tóváros was annexed to Tata managed by Zoltán Magyary. The unification was not finished properly regarding the main square because of the II world war. The community centre and the hospital next to the square are in bad condition and need to be rethought. The competition's prior goal was to design the heart of Tata.
The main concept of the plan is based on the layered historical memories. The aim is keeping as much of the exciting layered details as possible including the modern era. All the extractions and renovations are additional layers of today's architecture. The main square was designed by the existing axises of the city. All the three axises from the different eras meat at one point, which marked the "heart of Tata", a shallow water surface in the centre as the symbol for the "city of water". Concentric circles help the design to keep all the existing trees and memorials together, like the waves after a stone thrown into the water. The community centre is a beautiful memory of the modern era which needed an extraction on the rooftop for the daily operation. The plan keeps the concrete skeleton of the hospital and adds a new glass facade with a shading membrane. The old hospital building's new functions are youth hostel, offices of museologists and a gallery. Zoltán Magyary's unfinished vision of arcades are appearing on the shading membrane facade.





















