TQA2302
ATRIUM HOUSE
Kápolnásnyék
2023
house - in progress
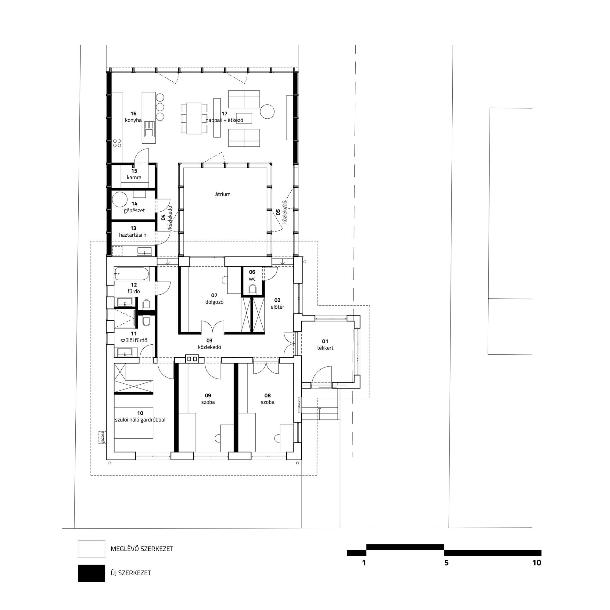
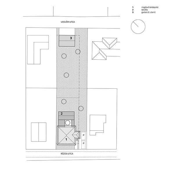
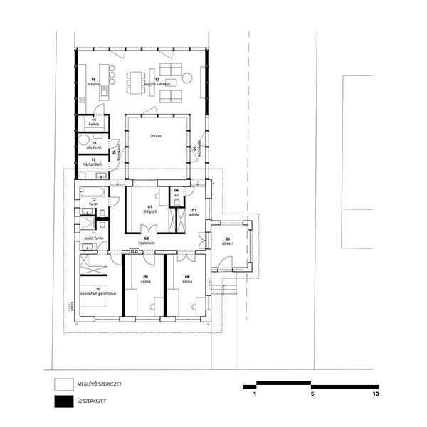
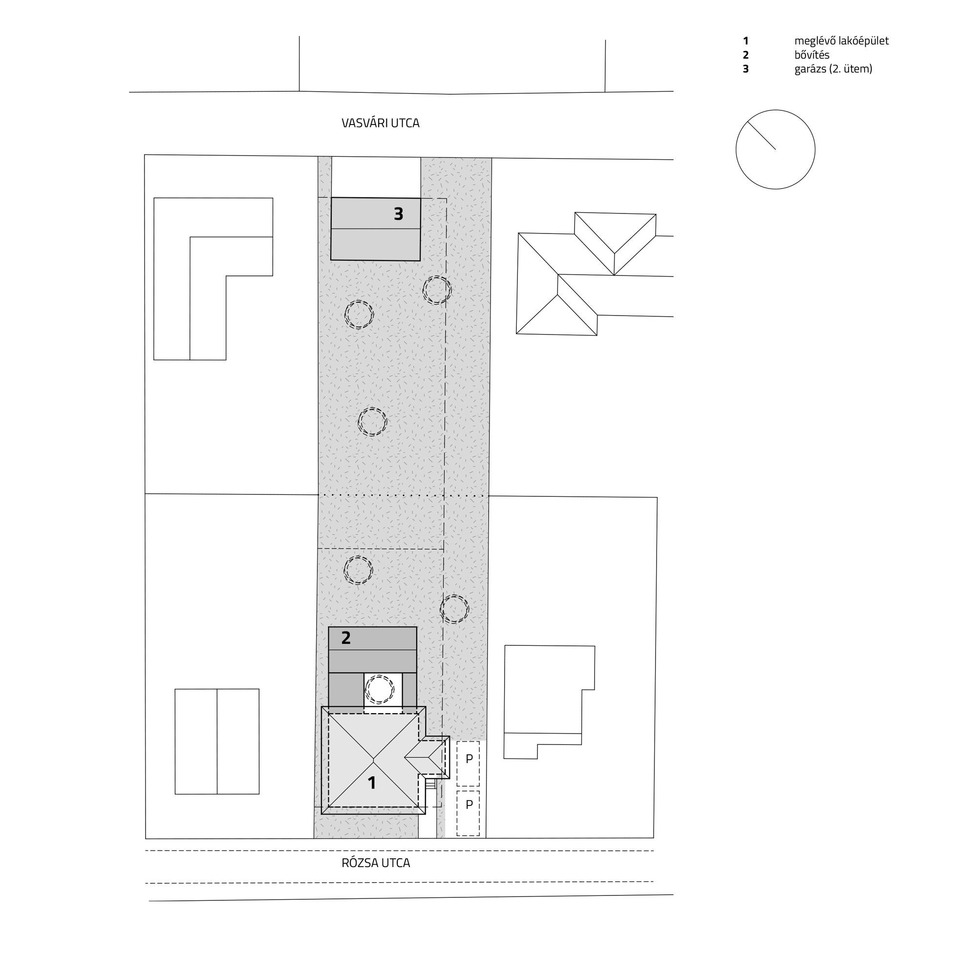
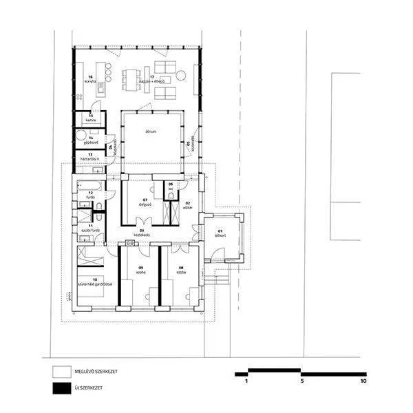
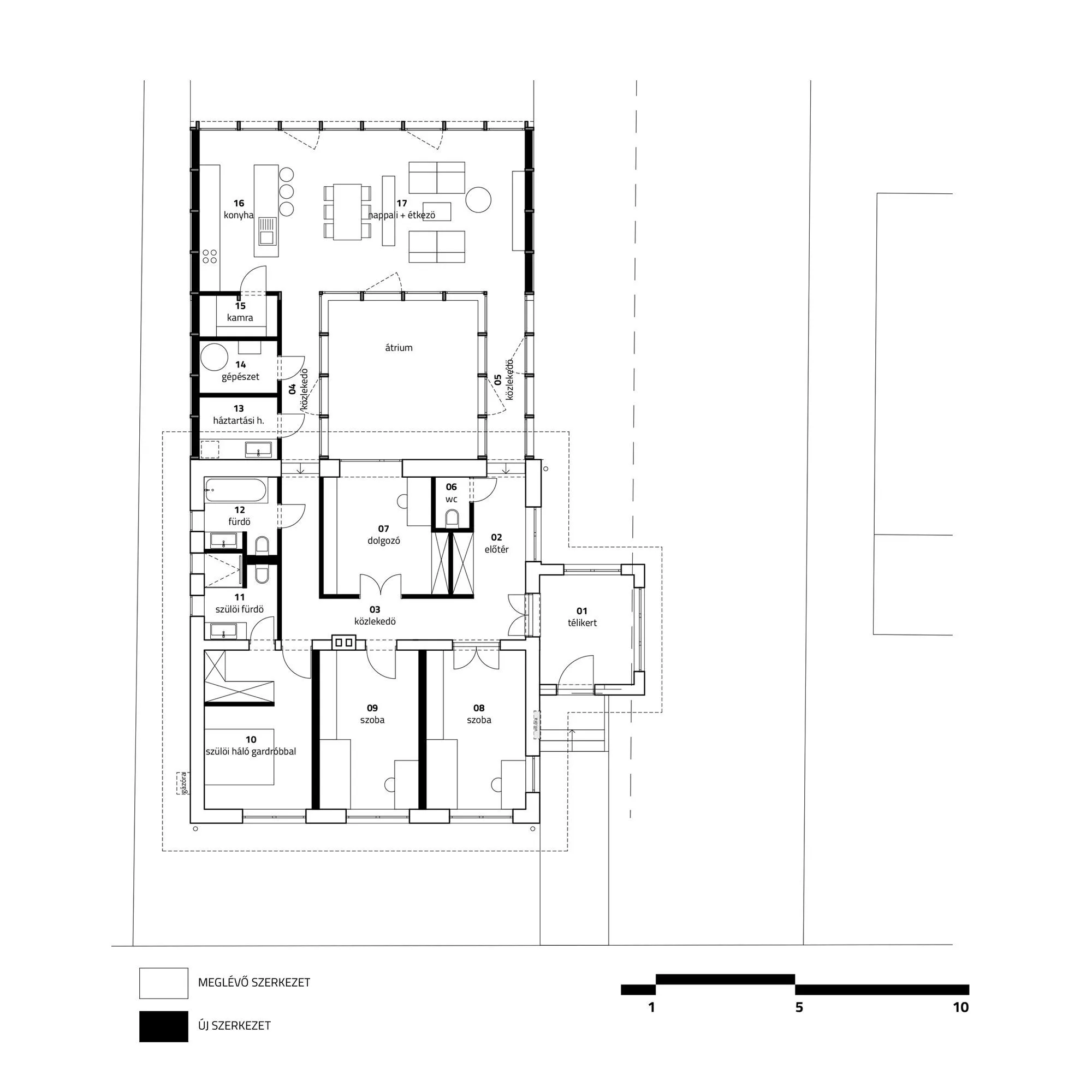
The renovation and extension project takes place in Kápolnásnyék, next to Lake Velencei. The existing house is a classic house type of the 1960's called "Kádár-cube". These uniform approx 10x10 metres houses were famous for the painted motifs on the main facade, which the owners chose individually, representing their own style and also compensating the lack of uniqueness.
Today's renovation wants to be a new exciting layer on the house, representing its inhabitants thoughts of the world. We do not want to cancel the Kadar-cube or make its portions and style unrecognizable, the extension continues in the back of the building. The owners have the opportunity to design or choose their own motif on the main facade.
The newly built part wants to be quite different from the Kadar-cube, that appears in the type of structure, materials, portions, roof geometry. The main concept is an atrium, which creates sunny space also in the existing and the new spaces. The atrium creates a circulating inner passage-system.
