TQA2303
YELLOW RIBBON
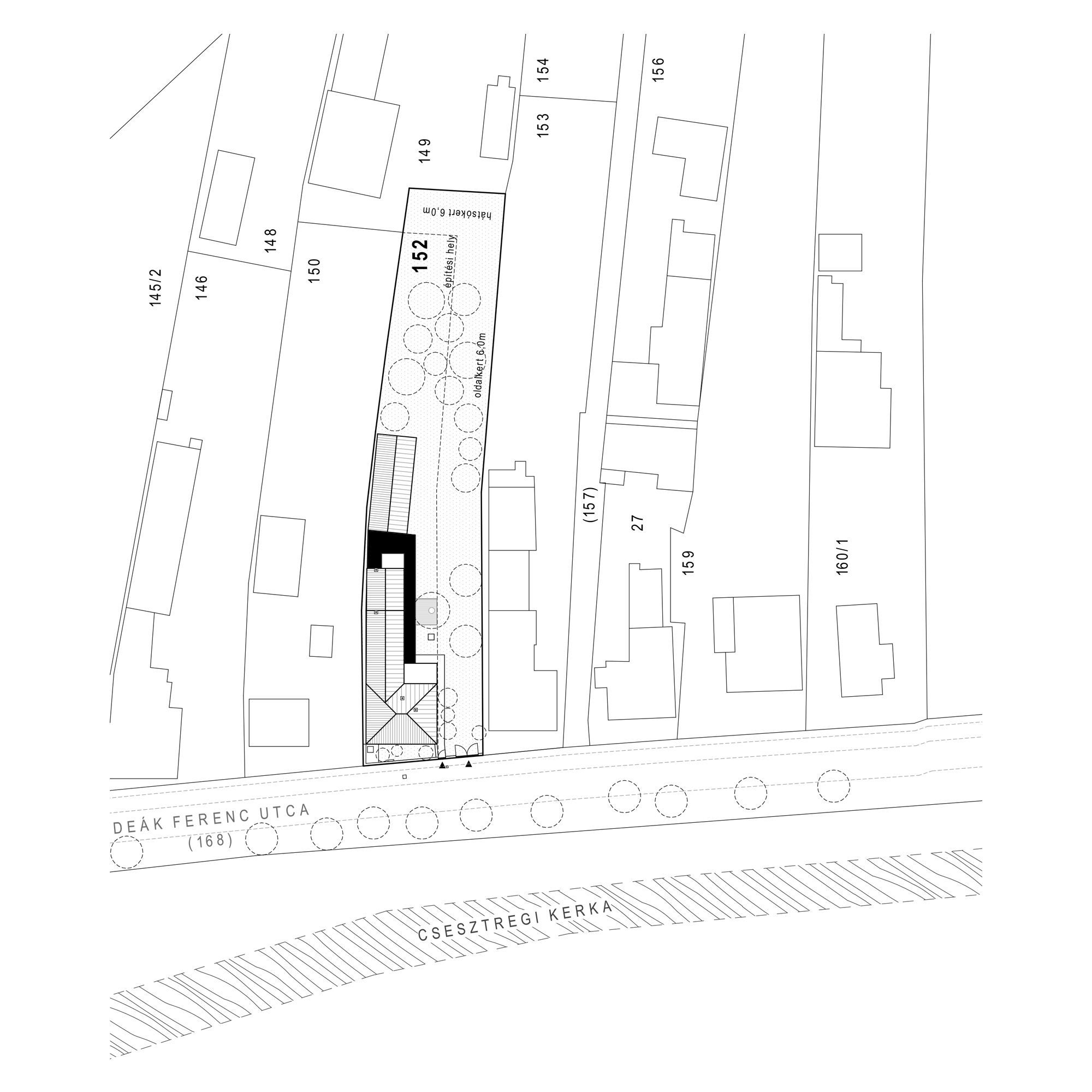
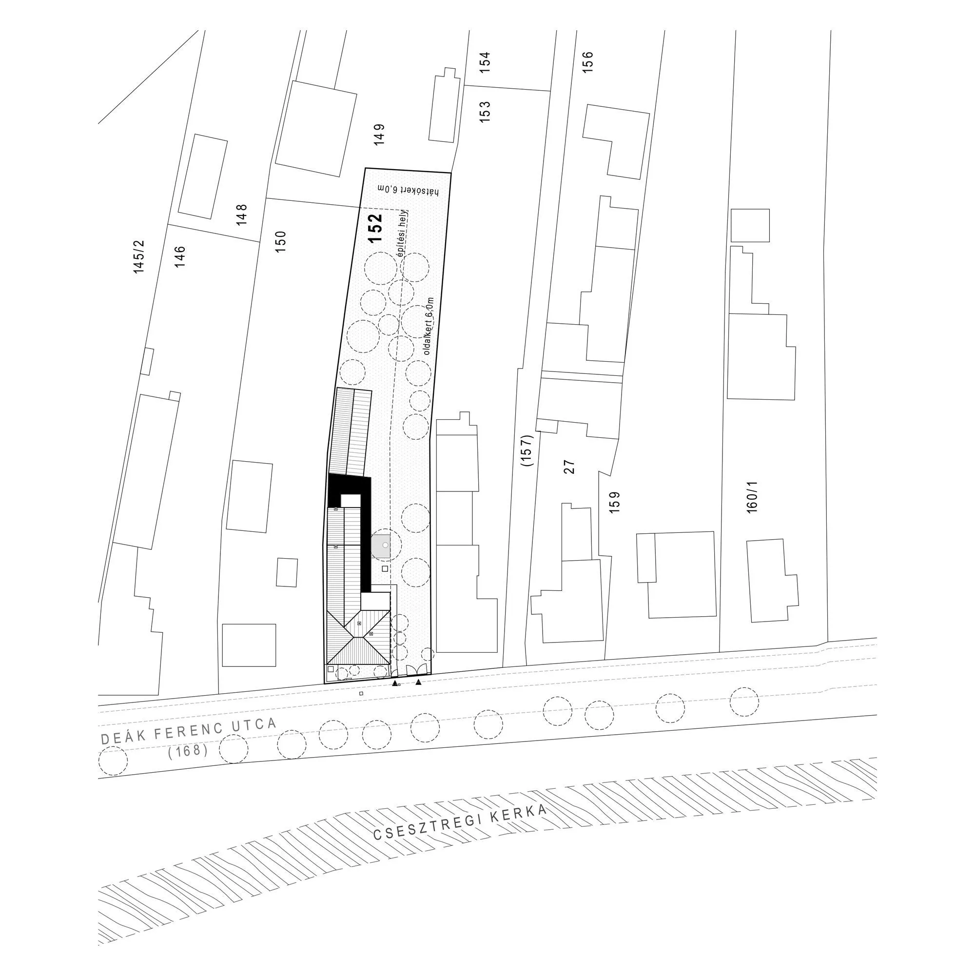
Csesztreg
2023
house - in progress
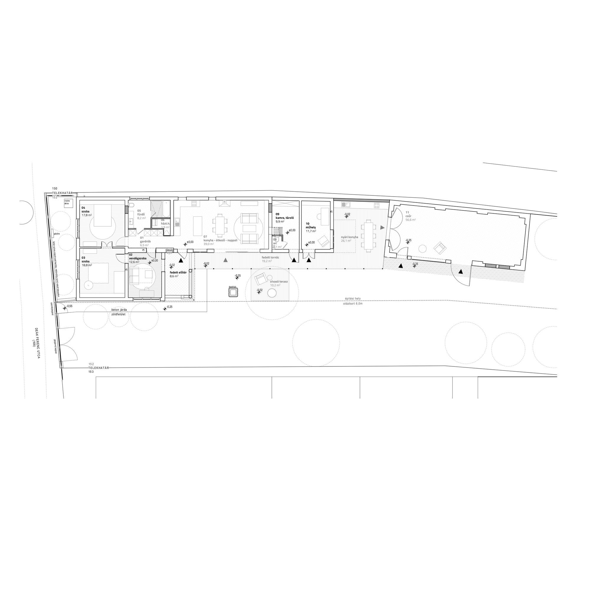
The renovation and porch extension takes place in Csesztreg, near the western border of Hungary. The existing house is a classic house type of the 1960'sm the so-called "Kádár-cube". The main approach to this project was a minimal touch to achieve low budget, sustainability, heritage preservation and also a contemporary result. A minimal set of tools was used during the design process. The main concept is a "yellow ribbon", a longitudinal porch which connects the house, the workshop and the barn, also designates the spot of the summer kitchen. The ribbon was created of multiplied concrete barrel vaults.
